Salen, Dalarna

Pågående

Östra Ärnäs

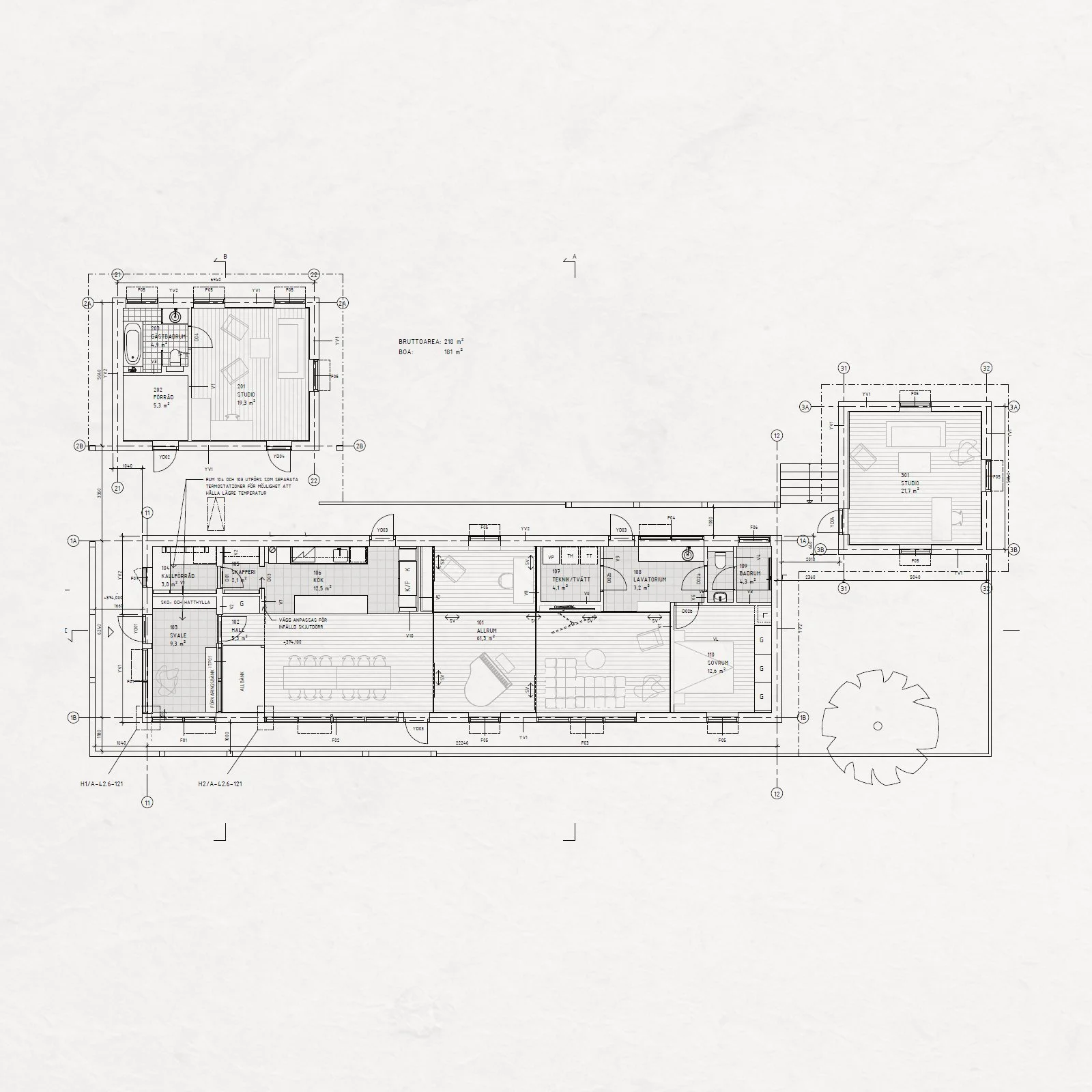
Projektet omfattar uppförandet av ett fritidshus i Malung kommun. Byggnaden i ett boplan utgörs av en huvudbyggnad med vind och två gästhus/ateljéer sammanlänkade av ett gemensamt tak. Fasaden karaktäriseras av en bröstningshög putsad mur och ovanför den en träfasad som liksom faltaket utförs i bränt trä enligt metoden Shou Sugi Ban.

Planlösningen har en funktionell koppling till den lokala byggnadstraditionen, vilket återspeglas i rumsfunktioner såsom en svalare tempererad hall, ett kallskafferi och en stor gemensam sal. Invändiga skjutväggar skapar förutsättningar för att dela in det gemensamma utrymmet i mindre rumsligheter och fungerar samtidigt för att dölja förvaring och mediaenehter.